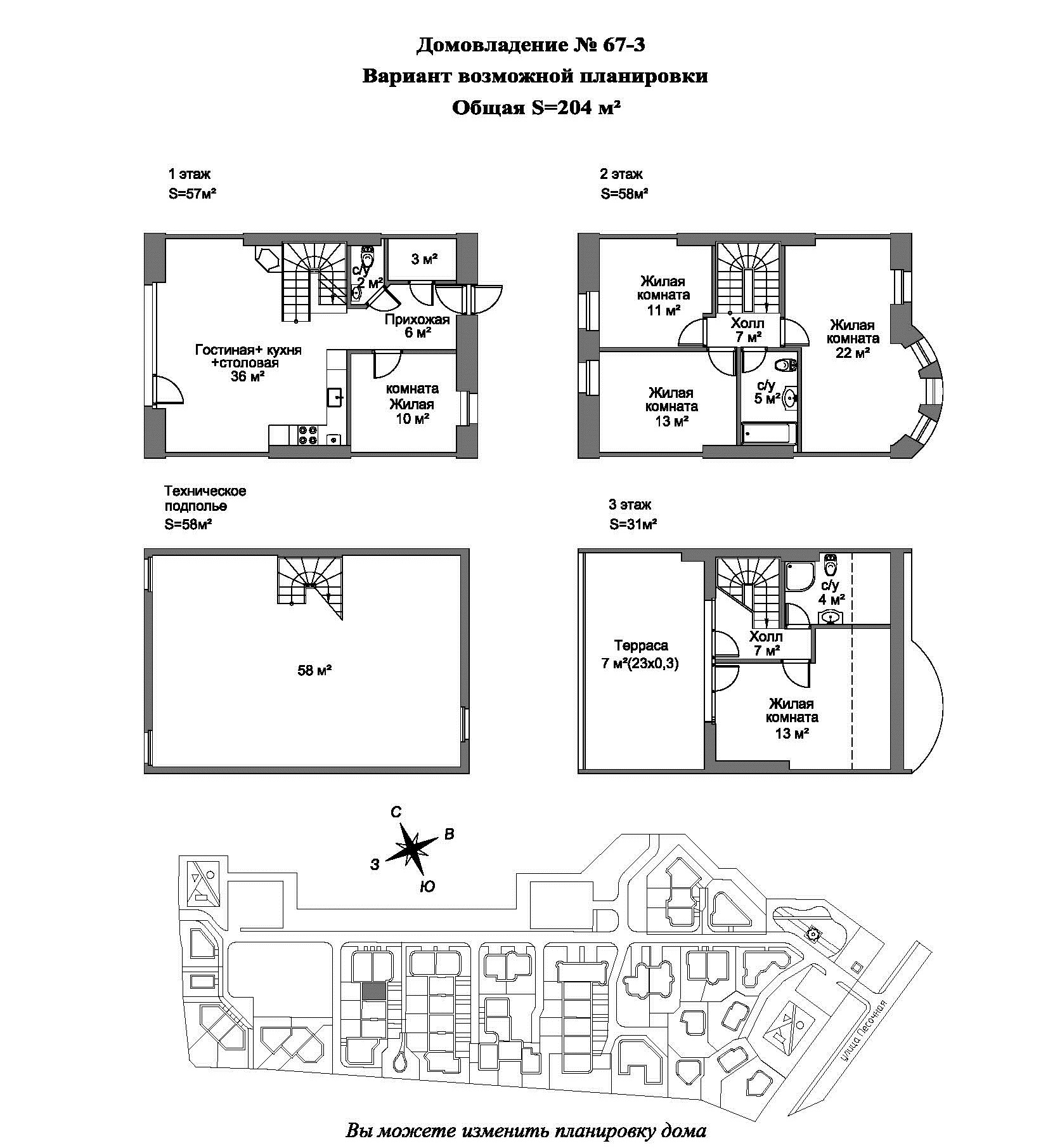
Корпус 67.3
Комфортабельный таунхаус общей площадью 204 м2 имеет собственный земельный участок-патио, который может быть озеленен с использованием элементов ландшафтного дизайна, обустроен под зону отдыха и террасу для чаепития на свежем воздухе. Вариант возможной планировки:
- техническое подполье площадью 58 м2 может быть эффективно использовано, к примеру, под организацию инженерно-технических помещений, а также других вспомогательных помещений: домашнего кинотеатра, небольшого фитнес зала, спа, сауны, большой гардеробной, гостевой спальни; - пространство первого этажа площадью 57 м2 может быть наполнено зоной с кухней-столовой, гостиной и жилой комнатой, которая может стать детской игровой комнатой, кабинетом или комнатой для гостей. В гостиной есть возможность подключения камина;
- пространство второго этажа площадью 58 м2 предусмотрено под организацию приватной зоны, здесь же располагается ванная комната и может быть 3 жилых комнаты. Дополнительные камины могут располагаться в любом месте таунхауса;
- пространство третьего этажа площадью 31 м2 предусмотрено под организацию приватной зоны, здесь же располагается ванная комната и комната для гостей с выходом на большую террасу 23 м2. Особенность дома заключается в инвариантном планировании пространства, когда есть возможность самостоятельно, в ходе проектирования, решить, где будут располагаться жилые комнаты, санузлы, кухонная зона и подсобные помещения. Вы можете заказать свою планировку дома, включая изменения инженерных коммуникаций, расположения лестниц и вентканалов. Выгодная текущая стоимость на начальной стадии строительства.



