Корпус 67.2
ЖК «Прибрежный Квартал» (Лисий Нос, Приморский район СПб) предлагает к продаже таунхаус. «Прибрежный Квартал» имеет очень удачное расположение – ЖК утопает в зелени, а до Финского залива всего 7 минут пешком (700 м). Квартал идеален для тех, кто мечтает жить в современном городе и одновременно наслаждаться великолепной природой и свежим воздухом. До Приморского шоссе всего 250 метров, при этом между домами и трассой расположен густой лес, который не дает шуму доноситься до домов.
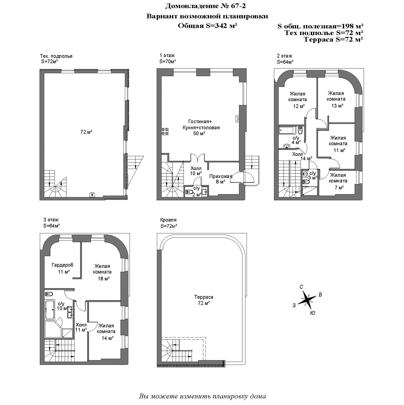
Возможно приобретение в ипотеку. Участок и дом оформлены в собственность. Таунхаус общей площадью 342 м2. Подключены все центральные коммуникации: газ, вода, электричество.
Имеется собственный земельный участок-патио, который можно озеленить с использованием ландшафтного дизайна, обустроить под зону отдыха и площадку для обедов на свежем воздухе. Вариант возможной планировки: техническое подполье площадью 72 м2 может быть эффективно быть использовано, к примеру, под организацию домашнего кинотеатра, фитнес-зала, гардеробной.
Пространство первого этажа площадью 70 м2 может быть представлено гостевой зоной с кухней и гостиной. В гостиной есть возможность подключения камина. Пространство второго этажа площадью 64 м2 предусмотрено под организацию приватной зоны, здесь же располагается ванная комната и может быть 4 комнаты. Третий этаж 64 м2 предусмотрен под организацию приватной зоны, здесь же располагается ванная комната и может быть 3 комнаты). Эксплуатируемая кровля площадью 72 м2 по желанию может быть оборудована в открытую террасу для комфортной работы на свежем воздухе и приятного отдыха. Данный таунхаус, как и остальные дома «Прибрежного Квартала», построен в максимальной близости от реликтовых сосен.
Особенность таунхауса заключается в ее инвариантном планировании пространства, когда есть возможность в ходе проектирования, решить, где будут располагаться жилые комнаты, санузлы, кухонная зона и подсобные помещения. Вы можете заказать свою планировку таунхауса.
Дом построен по индивидуальному проекту. Выполнен из экологически чистого и пожаробезопасного кирпича. Это наиболее качественный из современных строительных материалов. Основными характеристиками изделия являются его долговечность и прочность, что позволяет говорить о безопасности построенных с использованием такого материала жилых домов. Стены из кирпича отличаются достаточной звуко- и теплоизоляцией.



