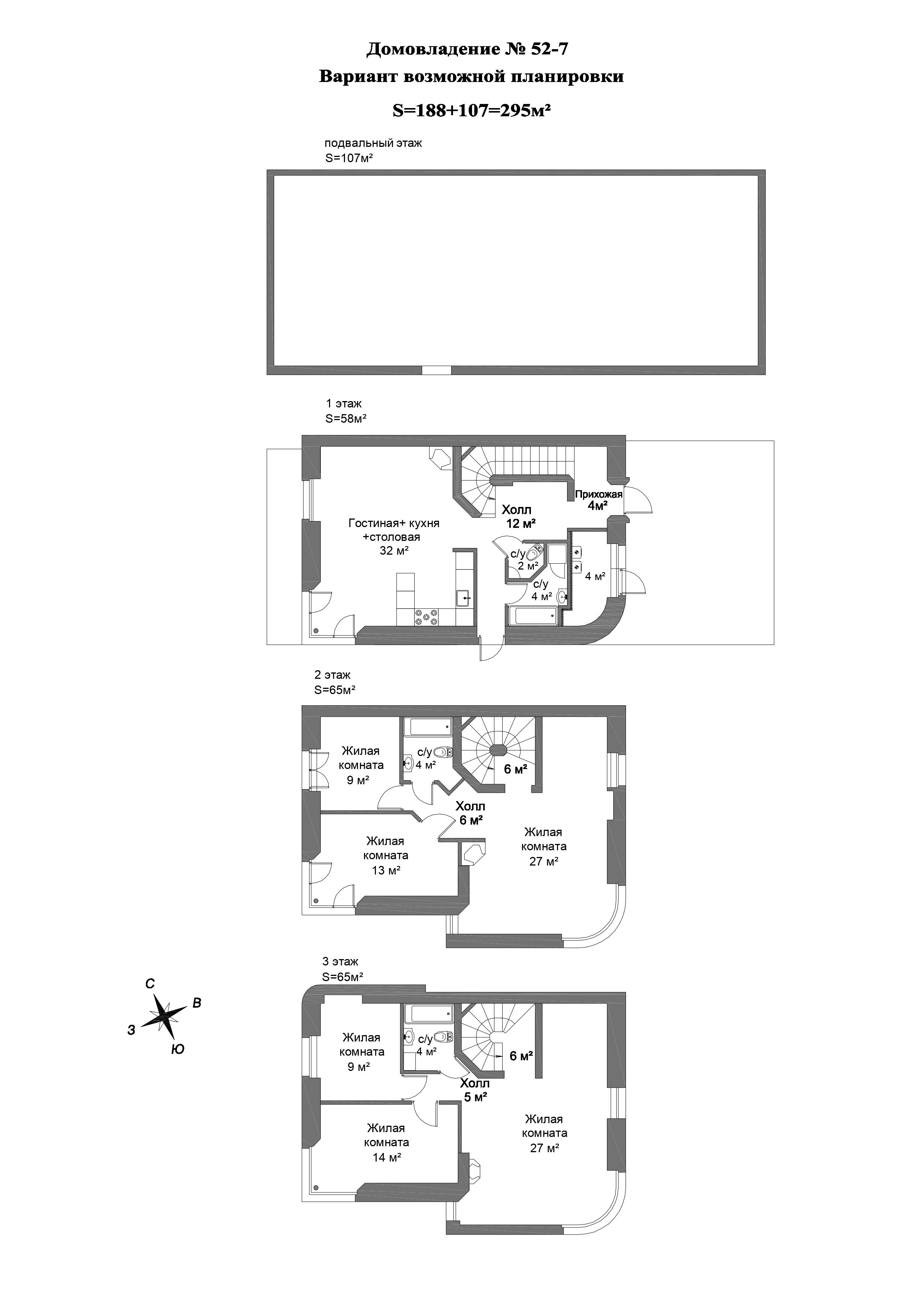
Корпус 52.7 "Лисички"
Малоэтажный жилой комплекс Прибрежный Квартал предлагает к продаже таунхаус «Лисички», выполненный в органическом архитектурном стиле, по авторскому индивидуальному проекту. Парковочное место и терраса на кровле — в подарок! Дом построен в окружении большого количества зеленых насаждений и в максимальной близости от реликтовых сосен. Имеется собственный земельный участок-патио, который частично может быть озеленен с использованием ландшафтного дизайна, обустроен под зону отдыха или площадку для обедов на свежем воздухе.
Трехэтажный дом выполнен из экологически чистого кирпича. Оформлена собственность. Проведены все центральные коммуникации, разведено отопление, построены и отштукатурены межкомнатные перегородки. Прописка СПб (Приморский район). Охраняемая закрытая территория. Социальная однородность, добрососедство. Клубная атмосфера.
Особенность дома заключается в ее инвариантном планировании пространства, когда есть возможность самостоятельно, в ходе проектирования, решить, где будут располагаться жилые комнаты, санузлы, кухонная зона и подсобные помещения. Вы можете заказать свою планировку таунхауса.
Жилой комплекс Прибрежный Квартал в Лисьем Носу имеет очень удачное расположение – ЖК утопает в зелени, до Финского залива всего 7 минут пешком (700 м), в огромном лесопарке вдоль побережья можно совершать интересные прогулки и заниматься различными видами спорта. Квартал идеален для тех, кто мечтает жить в современном городе и одновременно наслаждаться великолепной природой и свежим воздухом. Удобная транспортная доступность: до Петроградской стороны 15 минут на автомобиле мимо делового комплекса «Лахта Центр Газпром», до Метро Беговая 15 минут на общественном транспорте.



