Корпус 62.2 «Чага -хаус 4»
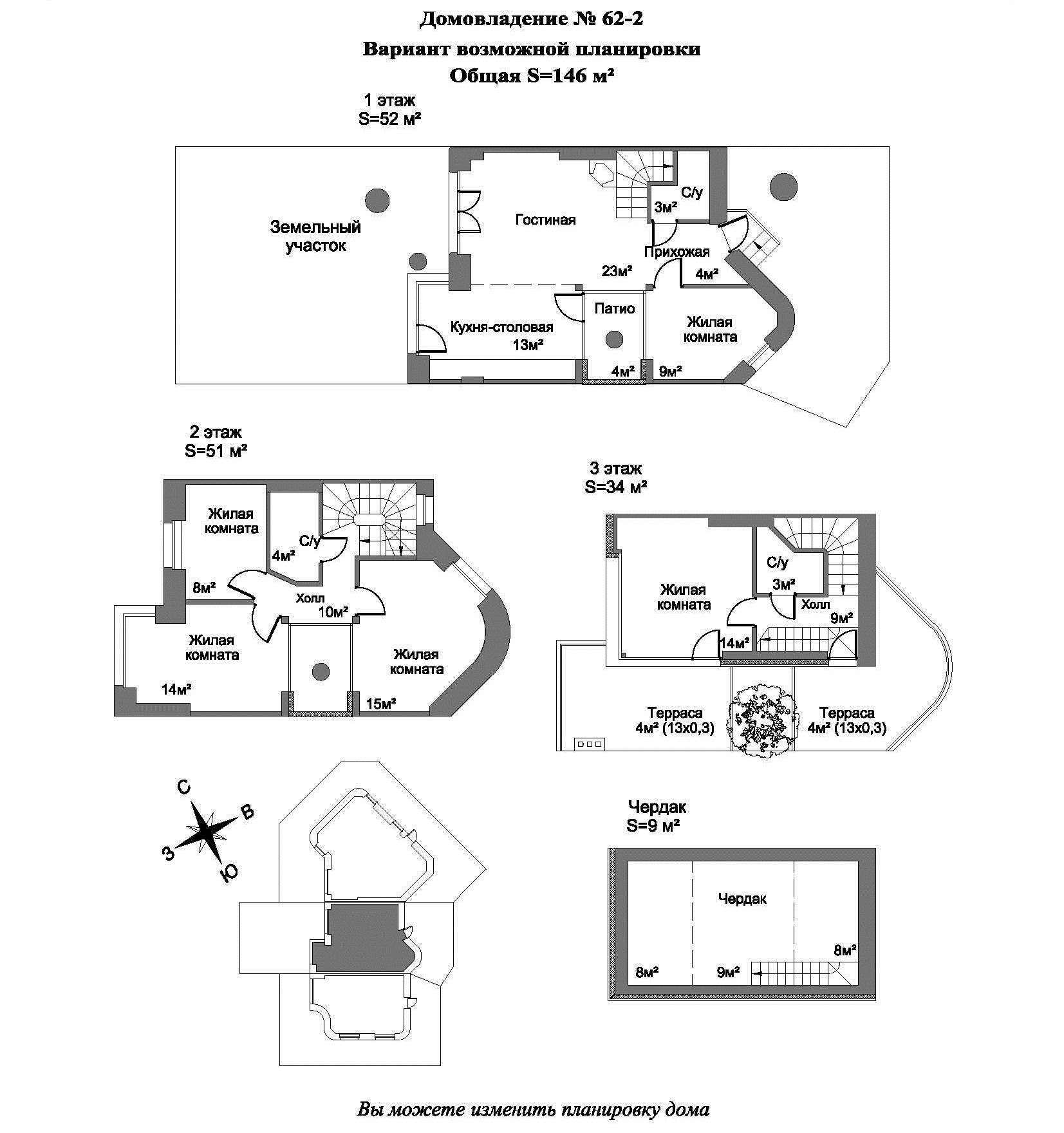
Продается жилой таунхаус общей площадью 146 м2. В доме 3 этажа. 52 м2, 51 м2 и 34 м2. Есть открытая терраса, которую можно застеклить или оставить в неизменном виде. Проведены все коммуникации: электричество, газ, вода, канализация. Солнечная сторона во второй половине дня.
Отличительная особенность данного таунхауса – реликтовая сосна, растущая прямо в доме. При строительстве здания были использованы специальные технологии, позволяющие сохранить дерево внутри дома. Такая постройка служит отличной демонстрацией архитектурного и технологического подхода в домостроении и показывает особое уважение к природе в «Прибрежном Квартале». На сегодняшний момент в «Прибрежном Квартале» уже построено два дома с деревьями внутри, другие дома первой очереди возведены максимально близко к соснам – на расстоянии двух метров.
При строительстве и отделке в «Прибрежном Квартале» применяются передовые и зарекомендовавшие себя технологии, экологически чистые материалы. В кирпичной технологии кладки используется 6 видов кирпичей. Применение проверенного временем керамического кирпича для возведения стен позволяет дому «дышать», а также обеспечивает непревзойденный комфорт при температурных колебаниях и отличную шумоизоляцию. Как и другие постройки «Прибрежного Квартала», данный таунхаус построен с бережным отношением к природе – сохранен естественный ландшафт и хвойный лес прямо на придомовой территории.



