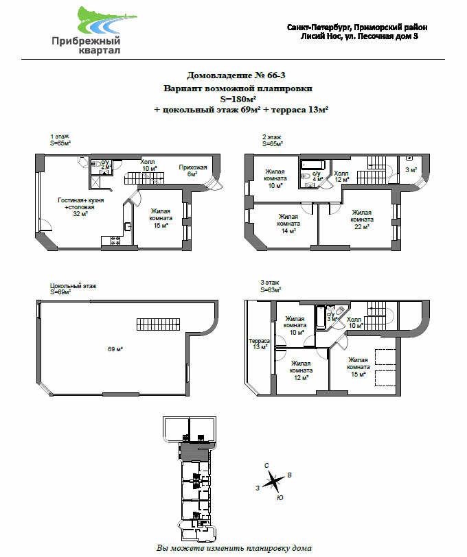
Корпус 66.3
Цокольный этаж, терраса на кровле и парковочное место в подарок! Малоэтажный ЖК Прибрежный Квартал продает кирпичный таунхаус корпус 66-3 с земельным участком-патио, который можно частично озеленить с использованием ландшафтного дизайна, обустроить под зону отдыха и площадку для обедов на свежем воздухе.
Проведены центральные коммуникации: газ, вода, электричество, отопление, телевидение, интернет. Прописка СПб (Приморский район). Охраняемая закрытая территория. Социальная однородность, добрососедство. Клубная атмосфера.
Особенность дома заключается в инвариантном планировании пространства, когда есть возможность самостоятельно, в ходе проектирования, решить, где будут располагаться жилые комнаты, санузлы, кухонная зона и подсобные помещения. Вы можете выбрать свою планировку таунхауса.
Прибрежный Квартал утопает в зелени, а до Финского залива всего 500 м. Удобный выезд на Приморское шоссе. Развитая сеть общественного транспорта.
Необходима предварительная запись на экскурсию.



