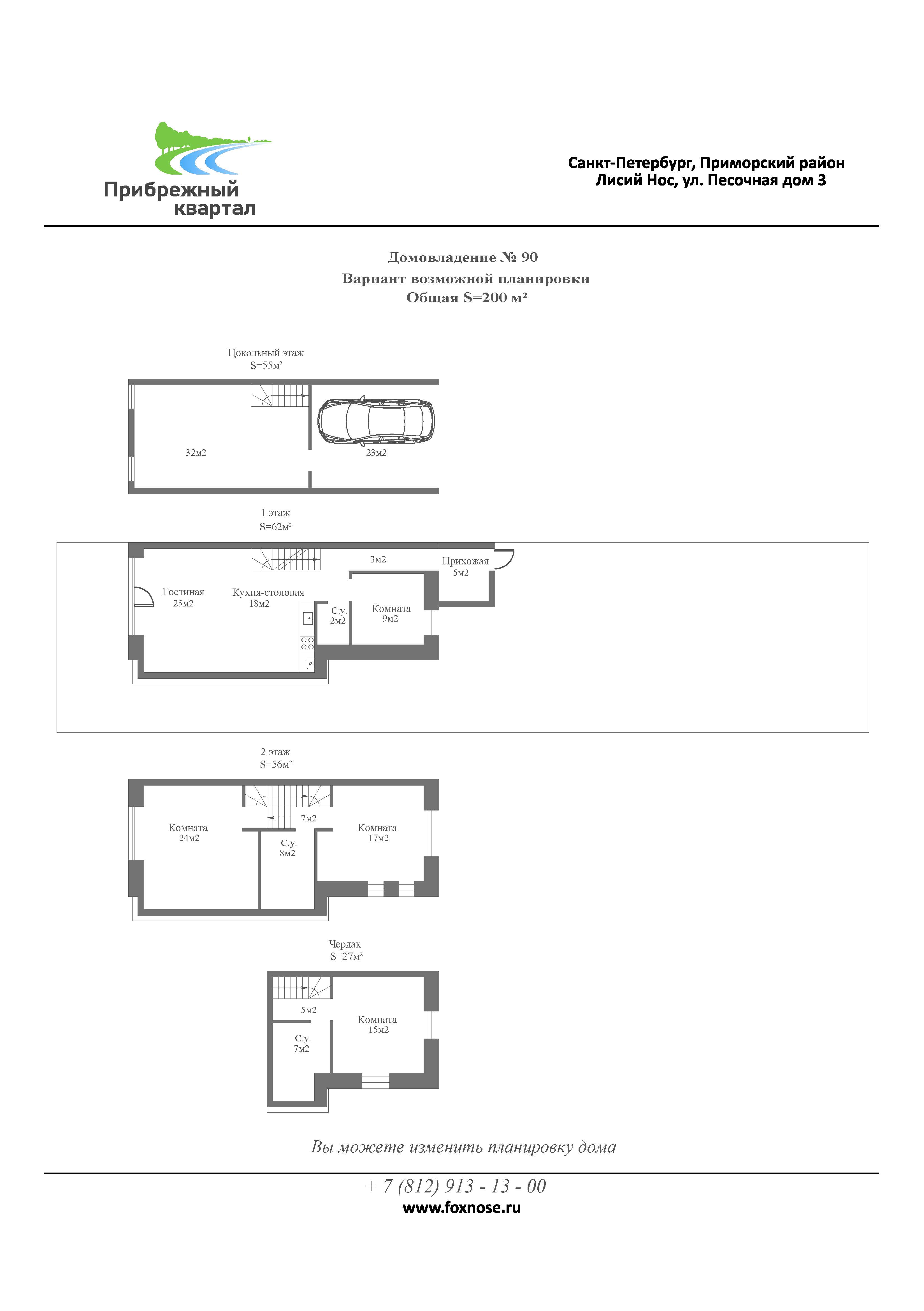
Корпус 90
ЖК Прибрежный Квартал в Лисьем Носу представляет новый жилой объект: Голландский дворик. Экстерьер десяти блокированных домов навеян урбанизмом Амстердама, где многие дома имеют необычную форму, вытянутую в глубину земельного участка.
Корпус 90 – торцевой таунхаус с подведенными коммуникациями и возможностью парковки в цокольном этаже. Внутреннее пространство открывает различные возможности для дизайна интерьера. Второй свет позволяет создать еще один уровень (мансарду) или освоить чердачные помещения. За счет верхнего освещения возможна подсветка лестниц, могут быть применены разные виды окон в скатной кровле. Вы можете обустроить помещения в цокольном этаже с окнами.
Владельцев недвижимости ждет максимальная индивидуализация, локальная парковка, террасы с видом и выходом в лес, минимум общественной собственности и перекрещивания потоков людей на территории.Голландский дворик в Прибрежном Квартале – это жилые дома из кирпича, которые с главного фасада формируют интересное общественное пространство двора, расположенного на озелененном стилобате. Противоположные фасады и террасы на первом этаже выходят на живописный хвойный лес, в котором преобладают ели и сосны.
Необходима предварительная запись на экскурсию.



