Корпус 67.1
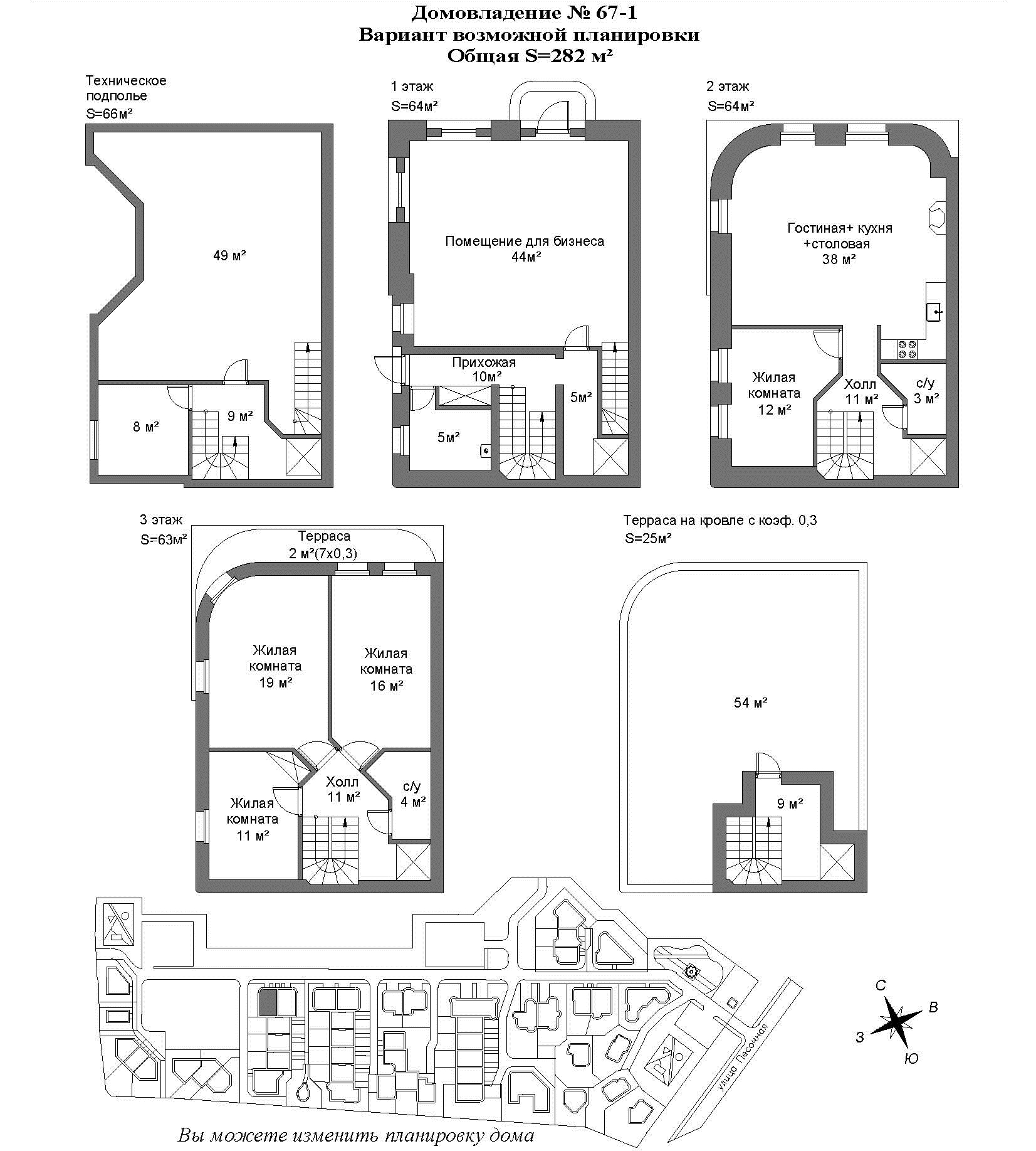
Прибрежный Квартал имеет честь представить сблокированный индивидуальный жилой дом общей площадью 282 м2, спроектированный для проживания и ведения предпринимательской деятельности. Возможность развития собственного дела, в том числе модных сегодня творческий индустрий, предусмотрена особым зонированием пространства, инвариантностью и резервированием входов, лестничных маршей, инженерных коммуникаций, наличие подсобных помещений, а также лифтовым сообщением с террасой на крыше. Если Вы инженер, юрист, врач, консультант, бухгалтер, парикмахер, дизайнер, художник, саунд-продюсер, специалист по работе с детьми, переводчик, IT-специалист, либо придумали индивидуальную трудовую деятельность, которой ни у кого нет – ground floor дома станет лучшим местом для предпринимательской инициативы. В обозримом будущем большинство людей будет работать в домашних условиях. Век «нового ремесленничества» наступает с внедрением информационных digital технологий. Урбанистические новации в области создания комфортного жилья обеспечивают МЕСТО и для Вашей работы!



