Корпус 66.2
Готовый дом из клееного бруса в малоэтажном жилом комплексе Прибрежный Квартал, в муниципалитете Лисий Нос (Приморский район СПб). Расстояние до метро Беговая 11 км (15 минут). Прибрежный Квартал имеет очень удачное расположение: ЖК утопает в зелени, а до Финского залива всего 5 минут пешком (500 м). Квартал идеален для тех, кто мечтает жить в современном городе и одновременно наслаждаться великолепной природой и свежим воздухом. Удобный выезд на Приморское шоссе.
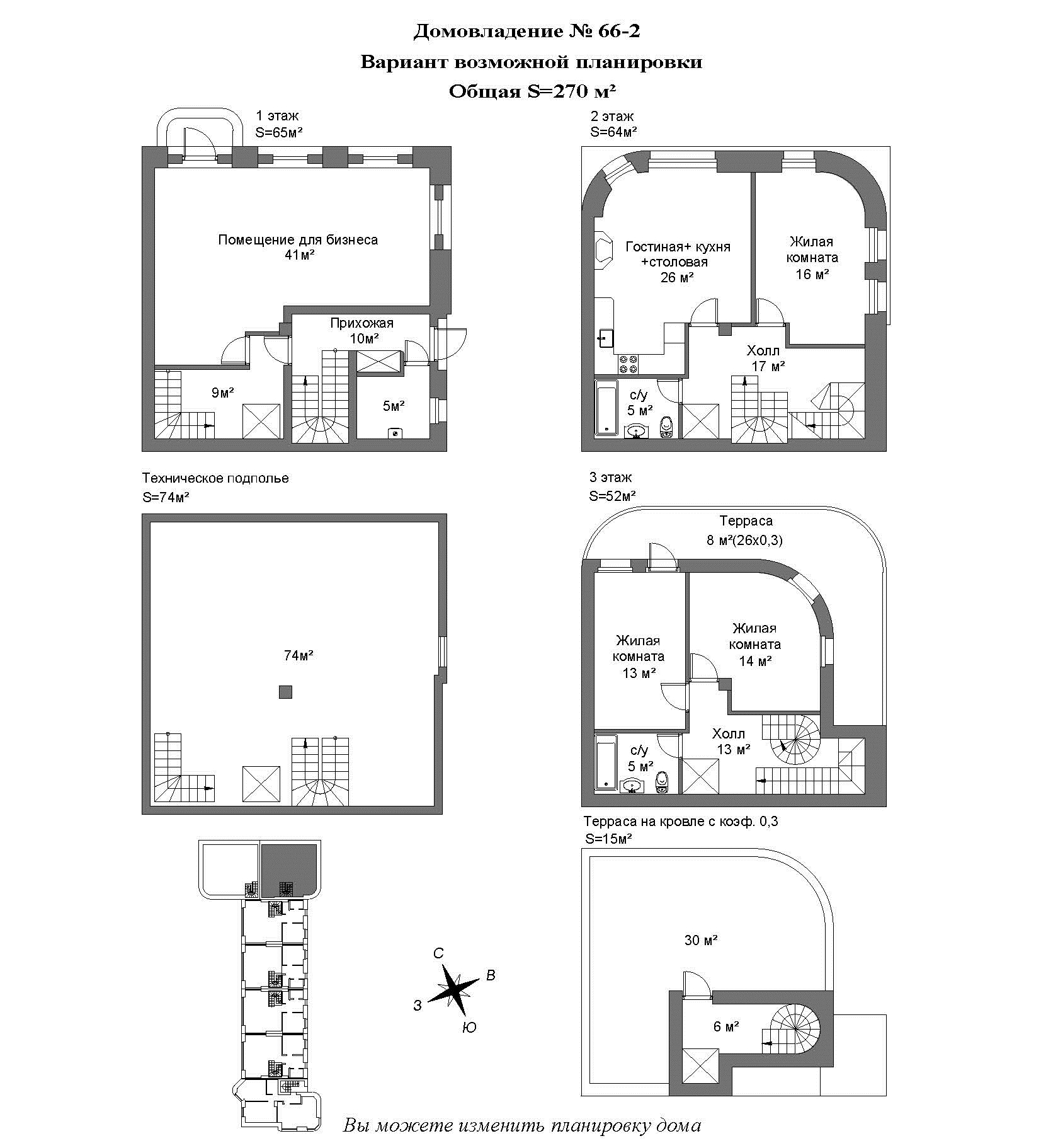
Цоколь, мансарда, терраса и парковочное место в подарок! Единственное предложение деревянного таунхауса в Прибрежном Квартале. Планировку можно выбрать самостоятельно. Например, на первом этаже обустроить гостевую зону с прихожей, кухню-столовую, гостиную с камином, на втором этаже - три комнаты и ванную. В мансарде - ванную комнату и комнату для гостей с выходом на большую террасу. Есть собственный земельный участок-патио. На нем можно построить зону барбекю, искусственный водоем или место отдыха. На участке растут березы, ели и сосны.
Статус ИЖС. Прописка СПб. Проведены центральные коммуникации: газ, вода, электричество, канализация; телефония, телевидение, интернет. Охраняемая закрытая территория.
Таунхаус из клееного бруса - один из последних архитектурных и строительных трендов в Прибрежном Квартале. Благодаря современным технологиям дерево становится огнеупорным и даже превосходит металл. Дерево отлично сохраняет тепло и снижает затраты на внутреннюю отделку. Прибрежный Квартал стремится удовлетворить запросы тех, кто предпочитает жить не в бетонных блоках, а именно в домах из керамического кирпича, а теперь и из дерева.
Приезжайте на экскурсию! Необходима предварительная запись.



