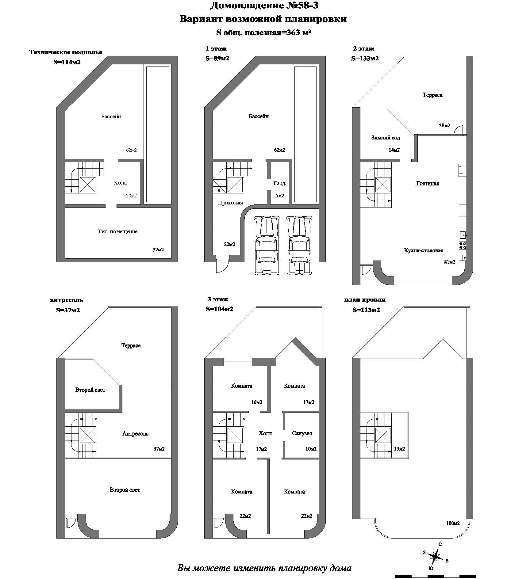
Корпус 58.3 "Премиум"
Открыты продажи домов из линейки Премиум в Прибрежном Квартале. Отдельный въезд с Песочной улицы и соседство с лесопарковой территорией, встроенный паркинг на 2 авто, а также особенные домостроительные и объемно-планировочные решения самого здания. В доме можно осуществить строительство бассейна, в 110-метровом техническом этаже можно обустроить кладовые, помещение для хранения шуб, винный погреб, оружейную. По Вашему желанию может быть установлен лифт, который осуществит быструю связь всех этажей с террасой на крыше более 100 м2.
На втором этаже располагается кухня-столовая, гостиная с высотой потолков 5.2 м2, имеющая второй свет с внутренним балконом и зимним садом. Из гостиной открывается красивый вид на сосновый лес через большое окно площадью около 20 м2 с небольшим открытым балконом. Кухня-столовая имеет выход на террасу 35 м2 с интегрированным блоком для барбекю и местом, дающим возможность совершать трапезу на открытом воздухе. Площадь зоны кухня-столовая-гостиная-зимний сад составляет около 100 м2 и терраса 35 м2.
Третий этаж имеет возможность организации 4 жилых комнат, просторного холла 20 м2. Вид на сосновый лес и красивый ландшафт. Эксплуатируемая кровля-терраса открывает замечательные виды, окружена бережно сохраненными вековыми деревьями. При желании можно развить проект благоустройства и озеленения террасы на крыше. Также каждый дом имеет небольшое озелененное патио со стороны Прибрежного Квартала.
Подключаются все городские коммуникации. У жителей дома Премиум есть возможность пользоваться сервисами и услугами Прибрежного Квартала. До пляжа Финского залива 8 минут пешком, в огромном лесопарке вдоль побережья можно совершать интересные прогулки и заниматься различными видами спорта.
Уникальное предложение на рынке недвижимости!



