Корпус 65.3
ЖК "Прибрежный Квартал" предлагает к продаже таунхаус общей площадью 195 м2. Это один из наиболее комфортных домов в "Прибрежном Квартале" за счет приватного двора. Отличный вид на лес и уже сложившуюся застройку. В доме проведены все коммуникации: газ, вода, электричество, канализация. Вы можете заказать свою планировку дома, включая изменения инженерных коммуникаций и расположения лестниц.
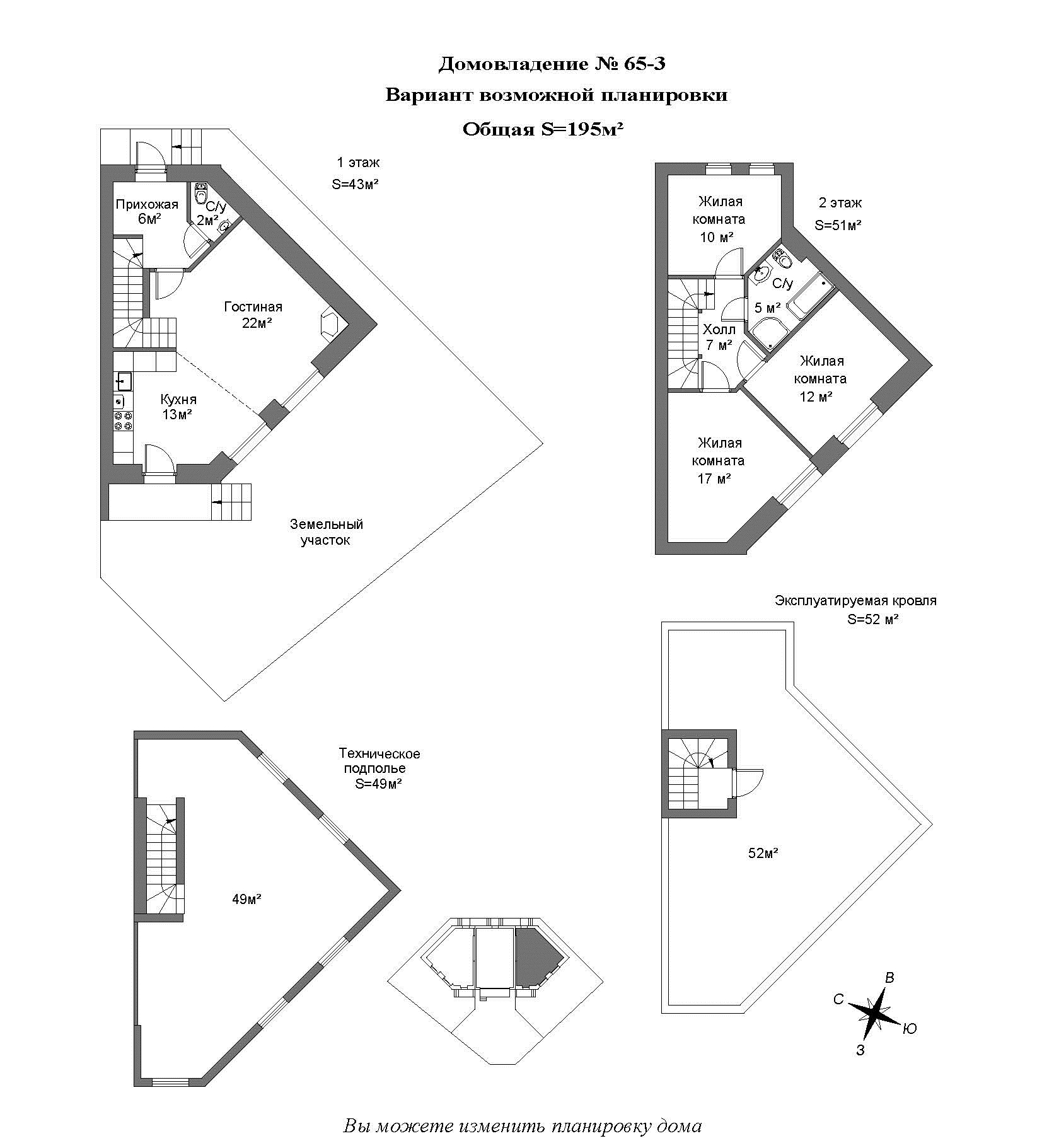
Таунхаус состоит из технического подполья 49 м2 (можно обустроить под гардеробную, сауну, бильярдную, спортзал, семейный кинотеатр, библиотеку), первого этажа 43 м2, второго этажа 51 м2 и открытой террасы 52 м2 с видом на реликтовые сосны и другие зеленые насаждения. Солнечная сторона во второй половине дня.
Дом построен по индивидуальному проекту. Выполнен из экологически чистого и пожаробезопасного кирпича. Это наиболее качественный из современных строительных материалов. Основными характеристиками изделия являются его долговечность и прочность, что позволяет говорить о безопасности построенных с использованием такого материала жилых домов. Стены из кирпича отличаются достаточной звуко- и теплоизоляцией и хорошей теплоемкостью. В отличие от многих других домов в "Прибрежном Квартале", данный таунхаус построен не в органическом стиле, а, скорее, тяготеет к классике.



