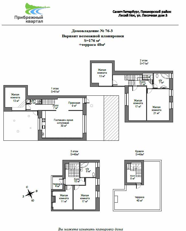
Корпус 76.3 «Античные дворы 2»
Терраса и парковочные место в подарок. Дом корпус 76-3 в малоэтажном ЖК Прибрежный Квартал. Кирпичный трехэтажный односемейный таунхаус от застройщика. Проведены центральные коммуникации: газ, вода, электричество, канализация, интернет, телевидение, телефония. Сохранен уникальный природный ландшафт. Планировка свободная.
Охраняемая закрытая территория. Добрососедство. Социальная однородность. Прописка СПб (Приморский район).
Удобный выезд на Приморское шоссе до развязок КАД и ЗСД; до Петроградской стороны 10 мин на авто мимо делового комплекса «Лахта Центр Газпром»; до м. Беговая 15 мин на общественном транспорте (автобусы, маршрутные такси, электропоезд). Прибрежный Квартал утопает в зелени, а до Финского залива всего 500 м. Владельцам недвижимости Прибрежного Квартала доступна вся инфраструктура Лисьего Носа: не перегруженные школы и детские сады, магазины, почта, банк, автосервис, рестораны, ветеринарная клиника.
Необходима предварительная запись по телефону отдела продаж.

 
		   
		   
			 
			 
			

 
		   
	
.17a1818d2cc40172089ffda53a9e5c9d216.jpg) 
			.07ec1d0fff9596238df636b73e46fae0216.jpg) 
			   
			   
			  